Rustico in vendita

Casier, Via Edmondo De Amicis
€ 99.000
5 locali 5 locali
264 Mq 264 Mq
2 bagni 2 bagni

Rustico in vendita

Casier, Via Edmondo De Amicis

Descrizione annuncio

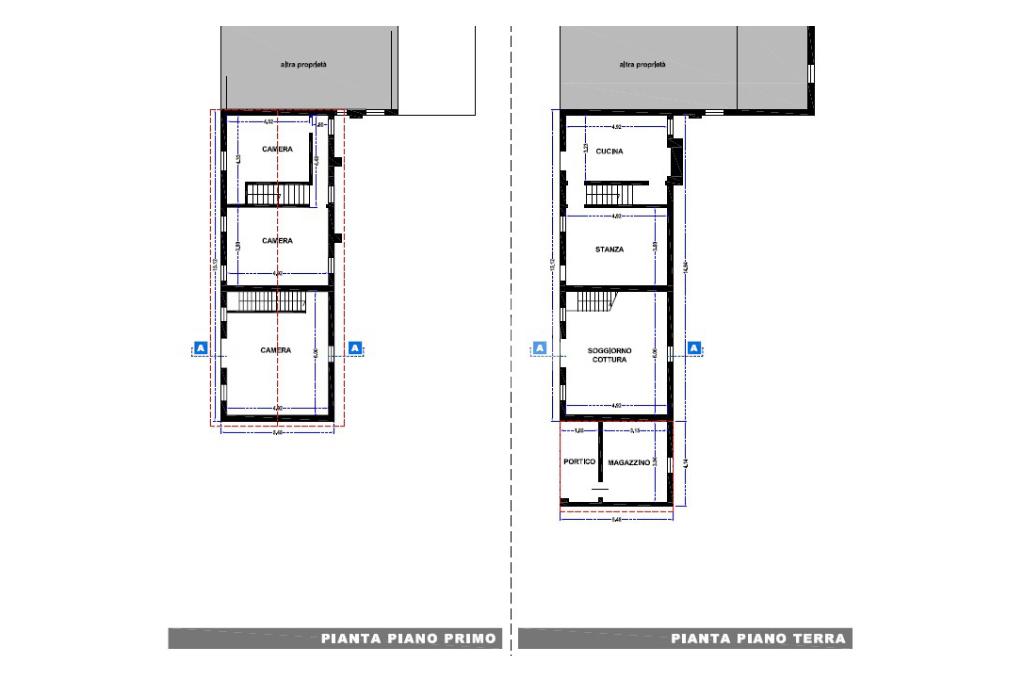
Casier, in un contesto di campagna tranquillo e lontano da strade trafficate, proponiamo rustico da ristrutturare o da demolire e ricostruire.

Attualmente il corpo principale è diviso in due unità abitative e si sviluppa su due livelli fuori terra. sono inoltre presenti due locali accessori, regolarmente condonati, da demolire e ricostruire.

Essendo possibile spostare il sedime del fabbricato esistente, la soluzione è ideale per chi intende realizzare una villa singola o una villa bifamiliare. E' possibile edificare fino a circa 800 mc abitativi oltre a circa 120 mc di garage.

Presso l'immobile è già stato fatto un progetto per la realizzazione di una villa bifamiliare, è possibile consultarlo tramite appuntamento in agenzia.

Mostra tutto

Nelle vicinanze

Trasporto pubblico Trasporto pubblico
Trasporto pubblico
2,2 Km
Scuole Scuole
Scuole
1,1 Km
Scuola Elementare A. Vivaldi
2,6 Km
Scuola Primaria Marco Polo
2,7 Km
Scuola Media statale "Marco Polo"
2,7 Km
Scuola dell'infanzia di Lughignano Carlo Collodi
2,7 Km
Farmacia Farmacia
Farmacia Dodi
1,3 Km
Farmacia Internazionale
2,5 Km
Supermercati Supermercati
Alì
700 m
Famila
1,7 Km
Maxi
2,4 Km
Centro Commerciale Emisfero
2,7 Km
Negozi Negozi
Panificio Conte
2,6 Km
Bar Bar
Le Bricole
1,1 Km
Bar
2,4 Km
Ristoranti Ristoranti
Al Sile
1,3 Km
Anema & Core
1,3 Km
Pizzeria Gelateria Lago Verde
1,6 Km
Osteria Da Nea
1,9 Km
Pizzevia
2,2 Km
Mostra tutto

Caratteristiche

Rif.:
61128270
Piano:
Su più livelli di 2
Totale piani:
2
Box:
2
Posti auto:
2
Camere da letto:
4
Mostra tutto
Prezzo Prezzo
€ 99.000
Rata mutuo Rata mutuo
€ 456 / mese
Spese annue Spese annue
€ 0
Proponi il tuo prezzoProponi il tuo prezzo
Immobile valutato con T·Valuta

Classe Energetica

G
G
G
G
G
G
G
G
G
EP invernale del fabbricato:
EP estiva del fabbricato:
Anno di costruzione:
1900
Riscaldamento:
Assente

Ti interessa visionare l'immobile?

Fissa un appuntamento  Fissa un appuntamento

Richiedi informazioni

* Questi campi sono obbligatori

Calcola il tuo mutuo

Semplice e senza impegno
Anticipo

( % )
Mutuo

( % )

pochi semplici passi

inserisci i tuoi dati
Questionario completato
Grazie per aver richiesto un appuntamento senza impegno con un nostro Consulente del Credito e Assicurativo.

Hai inserito correttamente tutti i dati necessari e a breve riceverai una e-mail con un link da convalidare per inviare i tuoi dati.
Affiliato
Immobiliare Preganziol Sas
Via R.Franchetti, 202 31022 Preganziol (TV)

Il nostro staff


  • Isabella Disconzi
    Collaboratrice

  • Roberto Albano
    Affiliato

  • Giacomo Nepitali
    Collaboratore

  • Nicolò Prandi
    Collaboratore

  • Isabella Rossetto
    Coordinatrice

  • Riccardo Socci
    Affiliato
Via R.Franchetti, 202 31022 Preganziol (TV)
Zona: Comune di Preganziol
Mostra su mappa
Orari: Lunedì - Venerdì 09:00 -12:30, 14:30 -19:30 Sabato 09:00–12:30 Domenica Chiuso
Affiliato
Immobiliare Preganziol Sas
Via R.Franchetti, 202 31022 Preganziol (TV)

2025 Tecnocasa Franchising S.p.A. - P. IVA 08365160152 - Via Monte Bianco 60/A 20089 Rozzano (MI). Ogni agenzia ha un proprio titolare ed è autonoma. Privacy policy | Policy utilizzo | Cookie policy